Retour
Mandat : 11261

Saint-Germain-en-Laye 78100 Appartement 860 000 € 92.1 m² • 4 pièce(s) • 3 chambre(s)

Envoyer

Description

Mandat : 11261

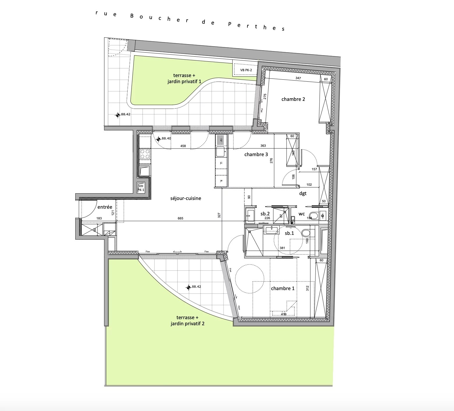
Appartement 4 pièces - RDC - SAINT-GERMAIN EN LAYE.

À 15 minutes à pied du centre de Saint-Germain-en-Laye, dans une résidence neuve, découvrez ce bel appartement traversant de 92 m² situé en rez-de-chaussée.

Il se compose d’une entrée ouvrant sur un séjour spacieux et lumineux avec un coin cuisine, de trois chambres équipées de dressings, d’une grande salle de bain, d’une salle d’eau et de WC séparés.

L’un des principaux atouts de cet appartement réside dans ses deux espaces extérieurs, accessibles depuis le séjour ainsi que depuis les chambres, offrant un cadre de vie agréable et verdoyant.

Une cave et une place de parking complètent ce bien.

Un cadre de vie idéal, entre confort moderne et proximité du centre-ville. Cette annonce immobilière a été rédigée sous la responsabilité éditoriale de l'agent commercial mandataire immobilier Bérangère LEROY.

Informations complémentaires

  • Honoraires à charge de l'acquéreur : 
  • Prix hors honoraires :  837000 €
  • Honoraires TTC à la charge de l'acquéreur :  23000 €
  • Double vitrage
  • Fenêtres coulissantes
  • Volets roulants électriques
  • Ascenseur
  • Local à vélo
  • Digicode
  • Interphone
  • Fenêtre PVC
  • Étage du bien :  Rez-de-chaussée
  • Année de construction :  2025
  • État general :  Neuf
  • Entrée
  • Séjour/cuisine
  • Chambre
  • Salle de douche
  • Dégagement
  • Chambre
  • Chambre
  • Salle de douche
  • Toilettes
  • Terrasse
  • Terrasse

Diagnostic énergétique

Bilan énergétique (DPE) Bilan énergétique (DPE) 76
Bilan gaz à effet de serre (GES) Bilan gaz à effet de serre (GES) 15
Version complète DPE/GES
DPE GES
Honoraires d'agence

Demande d'information

Bérangère Leroy • Agent Mandataire Prestige

Bérangère Leroy Conseil en immobilier de luxe 06 69 37 10 18